A excellent three bedroom mid-terrace home presented in immaculate condition throughout.
This property built around 2004 has been well maintained and cared for by the current owners. Set in Ard Uisce a well-known development located on Whiterock Hill approximately 3kms from Wexford`s main shopping thoroughfare.
Primary Schools – 1.7kms Scoil Charman, 2.5kms Kennedy Park
Secondary Schools – Loreto 2.5kms, 2.6kms Wexford CBS Primary & Secondary, 2.9kms Presentation Secondary
Technical College:- 2.9kms SE Technological University.
All other amenities such as local shops, supermarkets, pubs, restaurants, pharmacies and cafe`s are all within a 3kms radius.
Accommodation comprises of entrance hall, living-room, kitchen/dining, utility, downstairs w.c., stairs to 1st floor with three double bedrooms with one ensuite and family bathroom.
Viewing is highly recommend to appreciate the immaculate condition of this home.
Virtual Tour: – https://tour.giraffe360.com/1d7546e828db4d6db112292539bc84a4
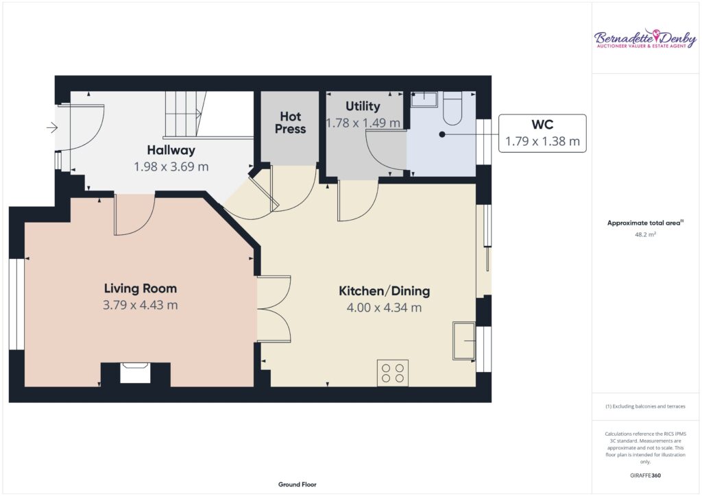
Entrance Hall
3.69m (12’1″) x 1.98m (6’6″) With ceramic tiled floor, stairs to 1st floor, and doors to:-
Living Room
4.43m (14’6″) x 3.79m (12’5″) With laminate timber flooring, open fireplace with timber surround and marble hearth, tv point, and double doors to:-
Kitchen/Dining
4.34m (14’3″) x 4m (13’1″) With eye and waist level fitted presses, fridge/freezer, electric oven, hob and extractor, dishwasher, stainless steel sink, splash back wall tiles and ceramic floor tiles, door to hot press, utility & downstairs w.c., and patio door to rear garden
Hot Press
1m (3’3″) x 1m (3’3″) Door in kitchen opens to hot press with insulated water tank and shevling.
Utility
1.78m (5’10”) x 1.49m (4’11”) Located off kitchen/Dining plumbed for washing machine, ceramic tiled floor and door to:-
WC Ground Floor
1.79m (5’10”) x 1.38m (4’6″) access via utility room with ceramic floor tiles, w.h.b. and w.c.
1st Floor Landing
2.21m (7’3″) x 2.11m (6’11”) Carpet on stairs and landing with access to attic, doors to:-
Bedroom 1
2.96m (9’9″) x 2.78m (9’1″) To rear of house with laminate timber flooring
Bedroom 2
3.33m (10’11”) x 3m (9’10”) To rear of house with laminate timber flooring
Bedroom 3
3.24m (10’8″) x 2.88m (9’5″) To front of house with lovely views towards coastline, laminate timber flooring, floor to ceiling sliderobes, door to:-
Ensuite Shower
1m (3’3″) x 2m (6’7″) With ceramic tiled flooring, tiled shower stall with Triton T90sr electric shower, w.h.b. with shaver light and w.c.,
Bathroom
2.28m (7’4″) x 2.62m (8’6″) With ceramic tiled flooring, part tiled wall, bath with power shower and shower screen, w.h.b. with shaver light, w.c.
Outside
There is ample parking to front of house and to the rear is an enclosed garden.
Services
Mains esb, water and sewerage, oil fired central, alarmed, heating and double glazed windows and doors.
Features
• Three bedroom Mid-Terrace
• Immaculate condition throughout
• Ideal starter/investment property
• Approximatley 1.7kms from Gael Scoil
• Local Link Bus Stop close to entrance of development
BER No:
118746957
Viewings
Strictly by appointment.
